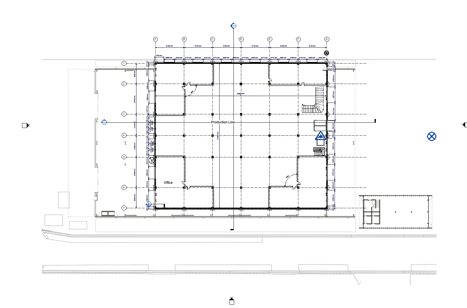
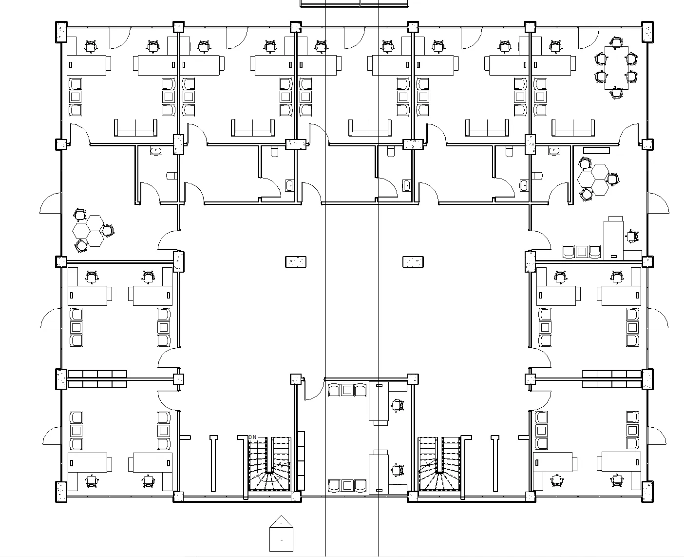
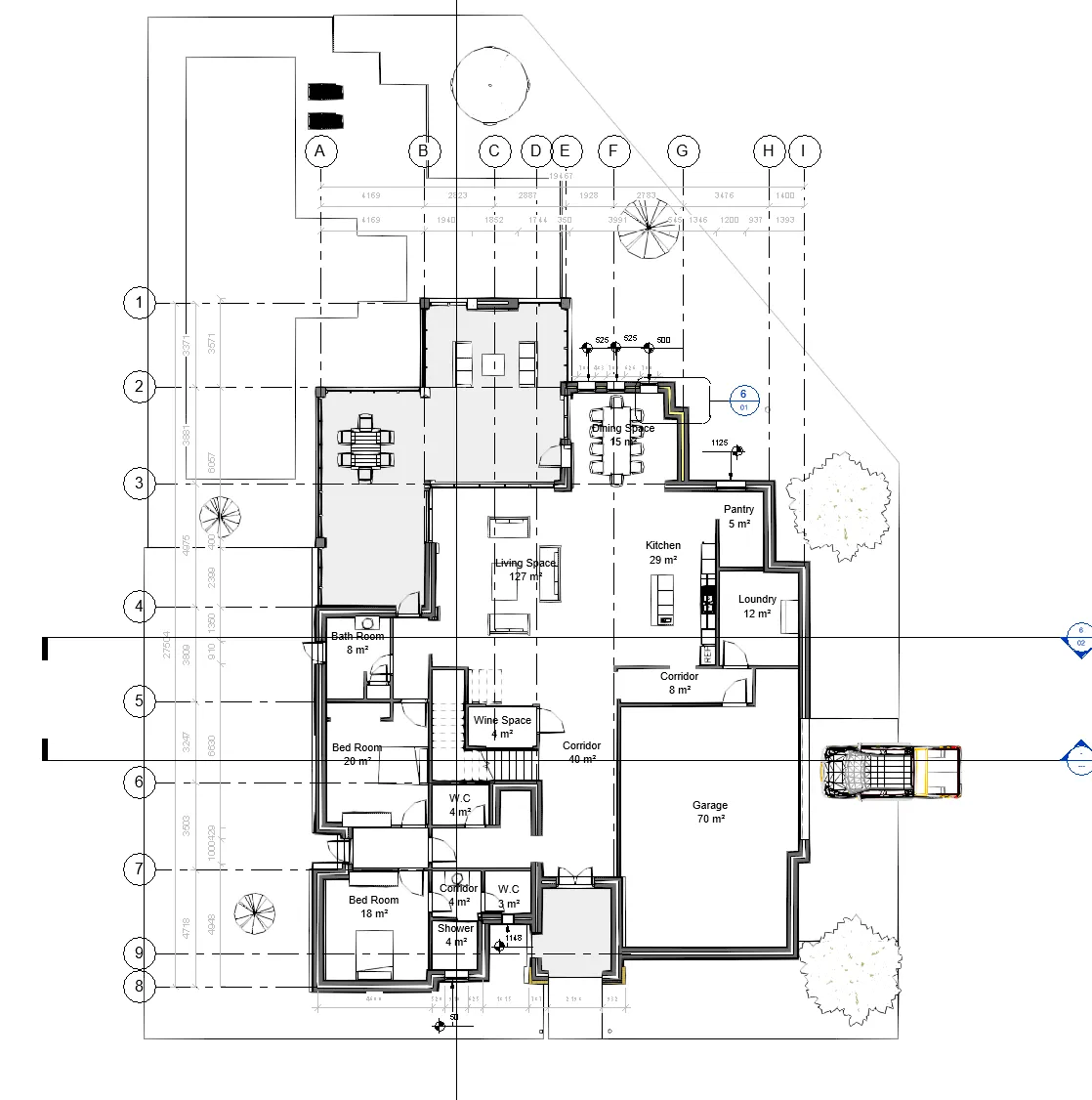
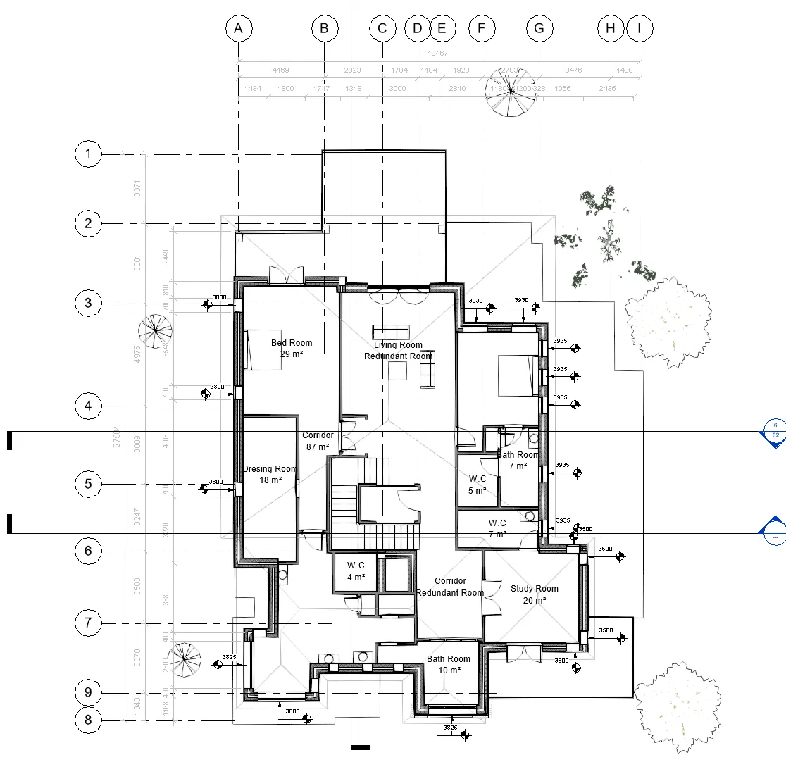
Advanced Architecture Technology
Category
Design, Architecture, Construction Technology
Focus
Advanced Technologies
Level
Postgraduate Level
Learning Objectives
- Understand advanced building systems
- Integrate technology into design
Subject/Studio Leader
Zaid Osama






























